滋賀県・彦根市の分譲宅地情報
![]()
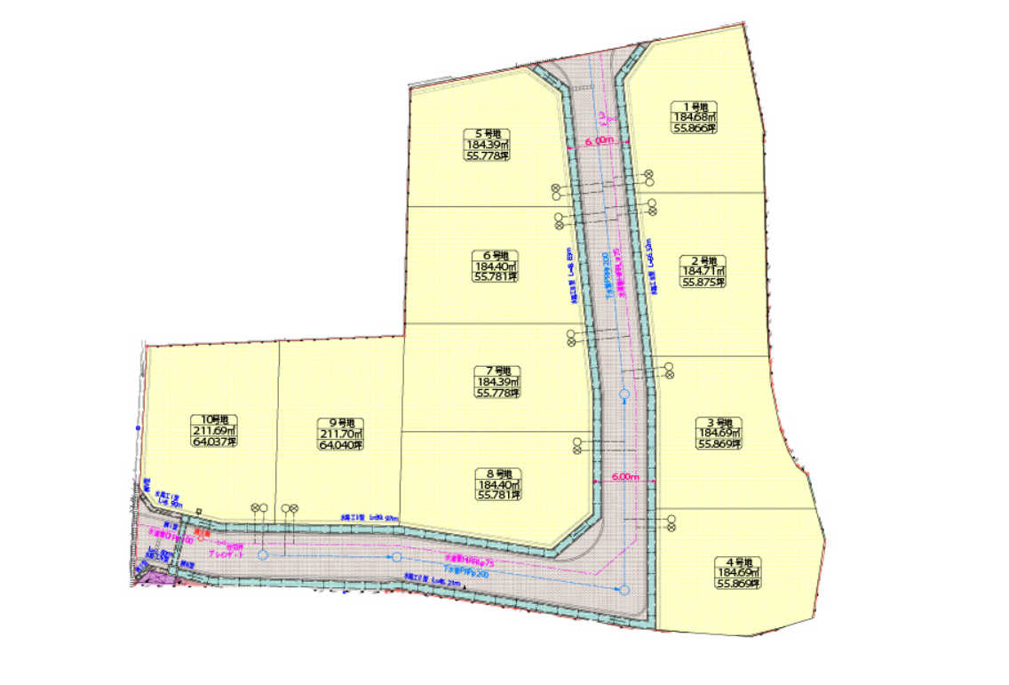
| 所在地 | 彦根市川瀬馬場町 |
| 開発総面積 | 2531.49㎡ |
| 総区画数 | 10区画 |
| 地 目 | 宅 地 |
| 区域区分 | 市街化区域 |
| 用途地域 | 第一種住居地域 |
| 建ぺい率 | 60% |
| 容積率 | 200% |
| ガス設備/電気 | プロパンガス/ 関西電力株式会社 |
| 水 道 | 公共上下水道/雨水側溝 |
| 汚 水、雑排水 | 公共上下水道(雨水は道路側溝) |
| 交 通 | JR琵琶湖線河瀬駅 徒歩18分 |
| 教育施設 | 河瀬小学校・彦根中学・しあわせ保育園・みどり幼稚園 |
| 負担金 | - |
| 開発許可番号 | 彦根市指令都第000868-1号 |
| 検査済証番号 | 第000868-1号 |
| その他 | - |
![]()
| 区 画 NO | 面 積(㎡) | 坪 数 | 坪単価 | 販売価格 | 備 考 | 状 況 |
| 1号地 | 168.84 | 64.03 | - | - |
済 |
|
| 2号地 | 168.85 | 64.03 | - | - |
済 | |
| 3号地 | 168.85 | 55.78 | - | - |
済 | |
| 4号地 | 292.38 | 55.77 | - | - | 済 | |
| 5号地 | 184.40 | 55.76 | - | - | 済 | |
| 6号地 | 184.39 | 55.77 | - | - | 済 | |
| 7号地 | 184.69 | 55.86 | - | - | 済 | |
| 8号地 | 184.69 | 55.86 | - | - | 済 | |
| 9号地 | 184.71 | 55.67 | - | - | 済 | |
| 10号地 | 184.66 | 55.86 | - | - | 済 |
![]()

![]()
![]() JR河瀬駅 |
![]() 彦根中学 |
![]() 河瀬小学校 |
![]() しあわせ保育園 |
![]() トライアル彦根 |
![]()














